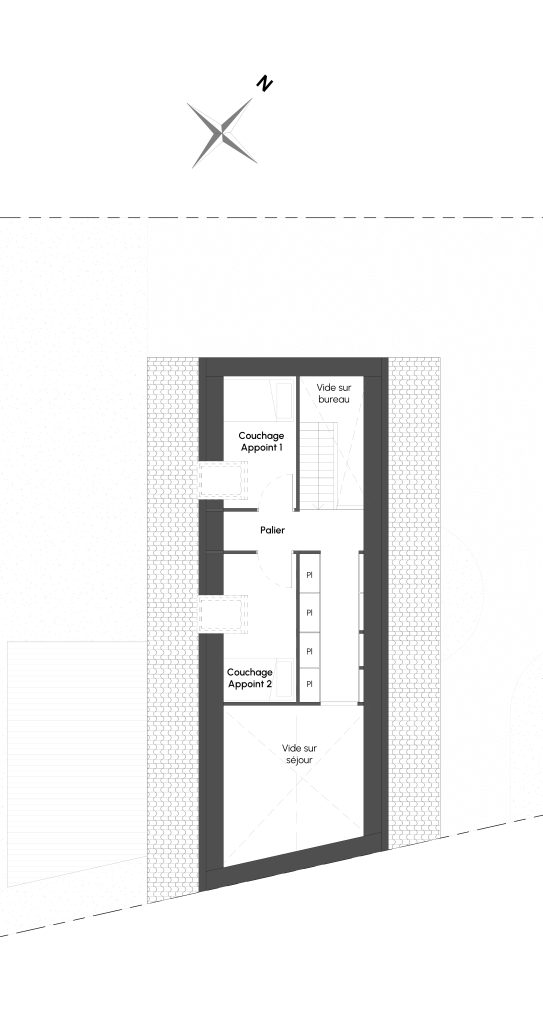
Le Projet 2 propose approximativement la même surface habitable que le Projet 1, mais les pièces de vie partagées possèdent des hauteurs sous rampants plus importantes.







Le Projet 2 propose approximativement la même surface habitable que le Projet 1, mais les pièces de vie partagées possèdent des hauteurs sous rampants plus importantes.