Aller au contenu
ANNE BESNARD
ARCHITECTE
ACCUEIL
PRESENTATION
MISSIONS
PROJETS
CONTACT
ANNE BESNARD
ARCHITECTE
Menu de navigation
Rechercher...
Menu de navigation
ACCUEIL
PRESENTATION
MISSIONS
PROJETS
CONTACT
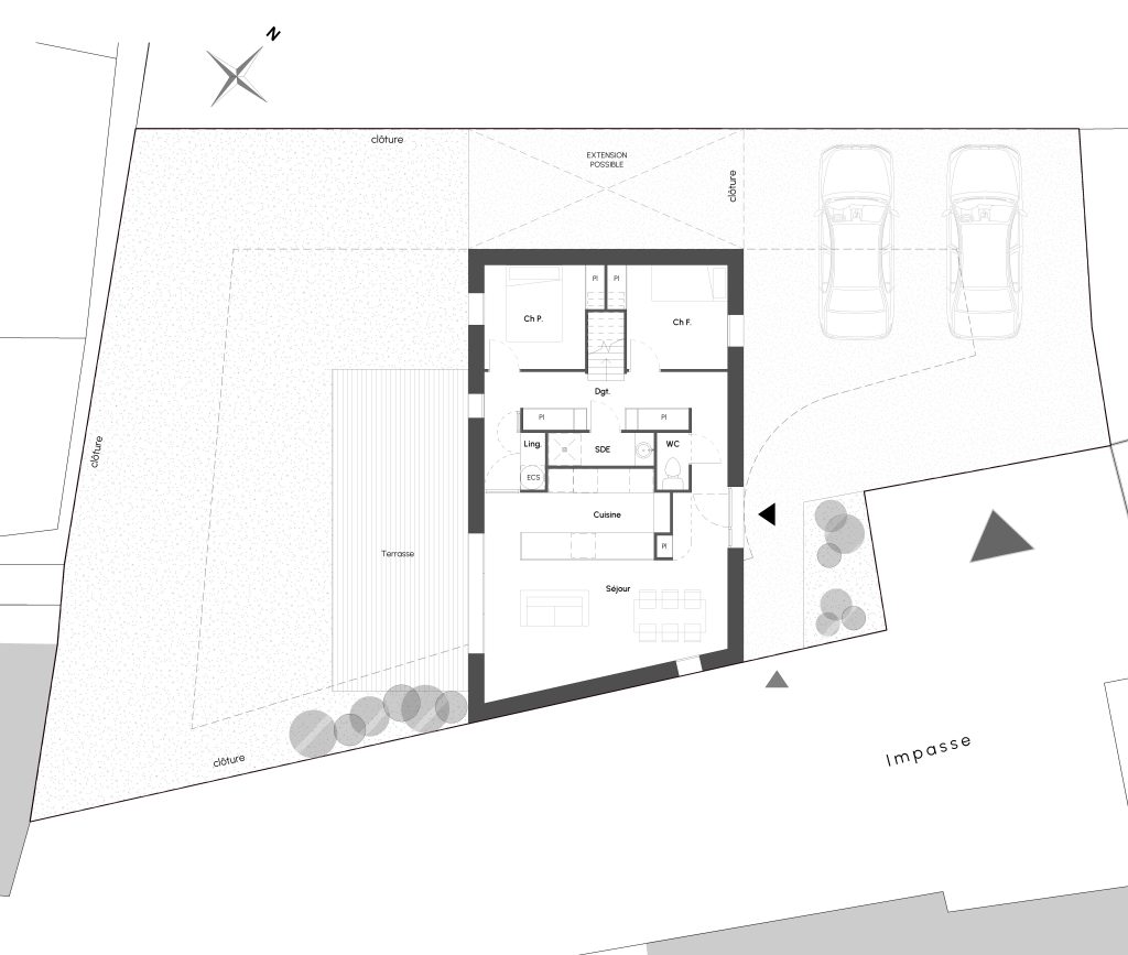
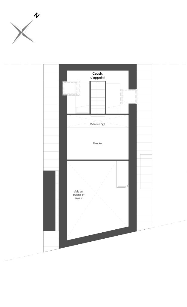
Projet 2 – Version D
C